E22SS PIU!

Ville d'Esch-Alzette
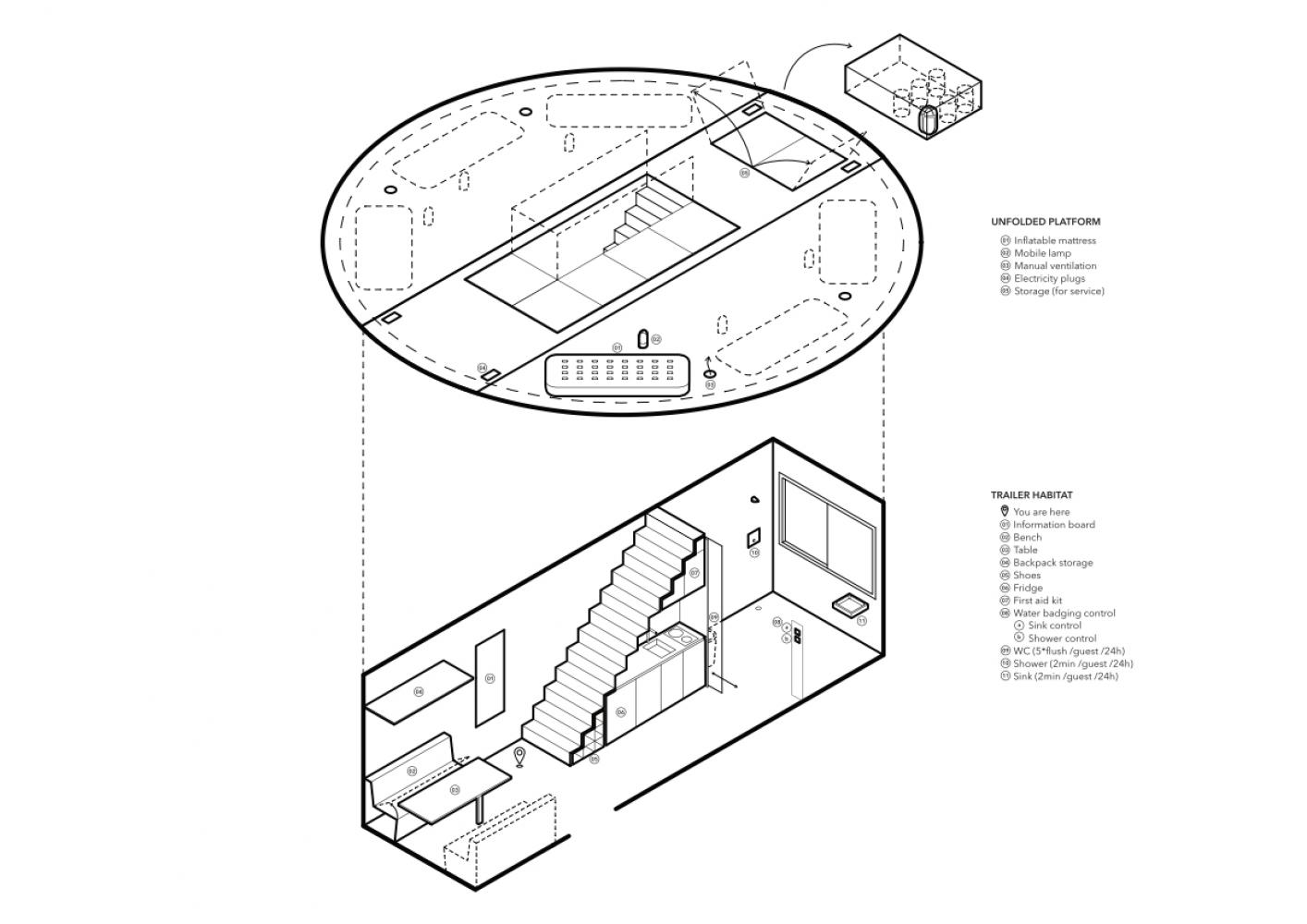
6 person mobile hut
92sqm
built
2021-2023

Esch 22 Space Station is a 6-people mobile sleeping hut, designed for experiencing the various contexts and environments of the city of Esch during the Capital of Culture 2022.

In mobile setting, the space station is reduced to a stainless steel trailer, containing bath, kitchen and dining space. 

Once arrived on a destination, 2 wings unfold to form a ø9 meter circular platform with cork cover on top of the trailer.

On this platform, a double-shell pneumatic dome is inflated to form the generous sleeping habitat.

Moreover, E22SSPIU! problematizes, by its architectural and technical nature, our discipline’s and society’s relation to resources; soil, water and energy.

 

pictures: 2001, AC Goebbels, Ludmilla Cerveny.