FORUM CASINO

CASINO luxembourg - contemporary art forum
public area redefinition of an art center
500 m2
competition
/

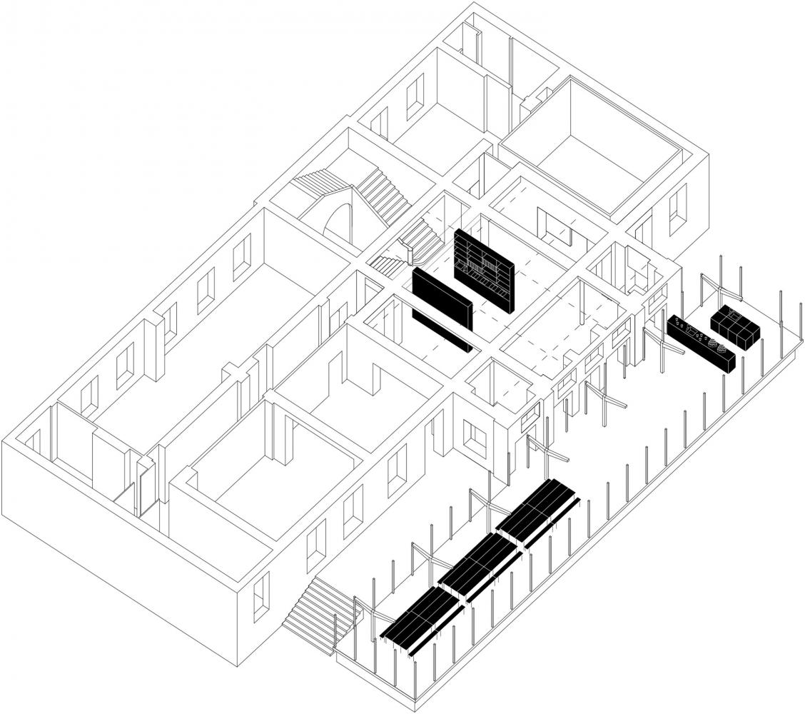
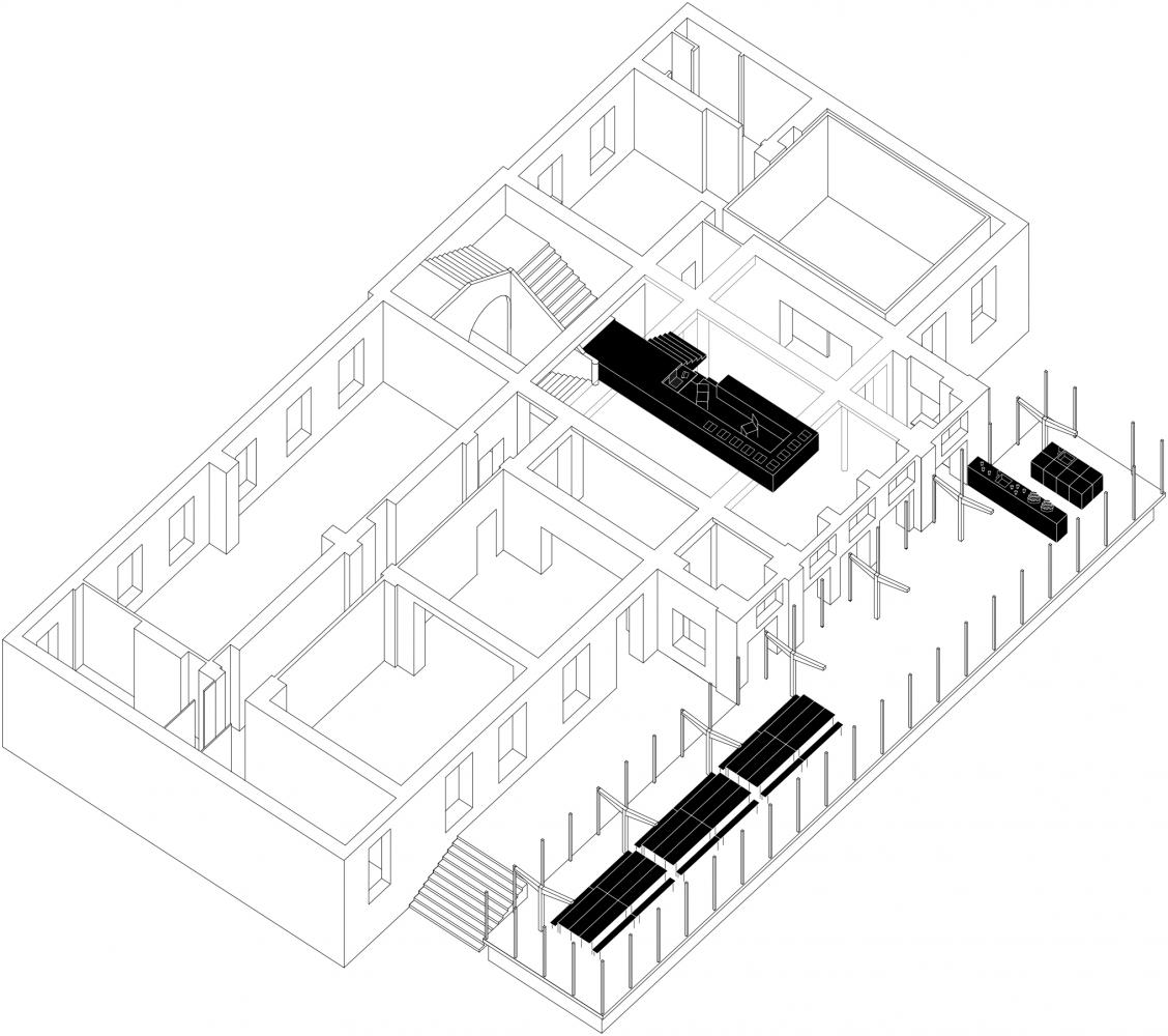
For this invited competition aiming at redefining the groundfloor of Luxembourg’s  contemporary art forum,  3 scenarios and proposals were developed, developing the brief into a larger questioning about art centers.

The general ambition was to turn the groundfloor into an extension of the urban public space, integrating a culinary café and to preserve a maximum flexibility for a variety of to be defined uses.

The research resulted in a proposal consisting of an infrastructure integrating reception, library and shop, and enabling to transform the foyer spatially.