GOeTHe

private
apartment refurbishment
built
2021

The faint attempts of mid-century domestication were stripped of this derelict early 20th century apartment.

 

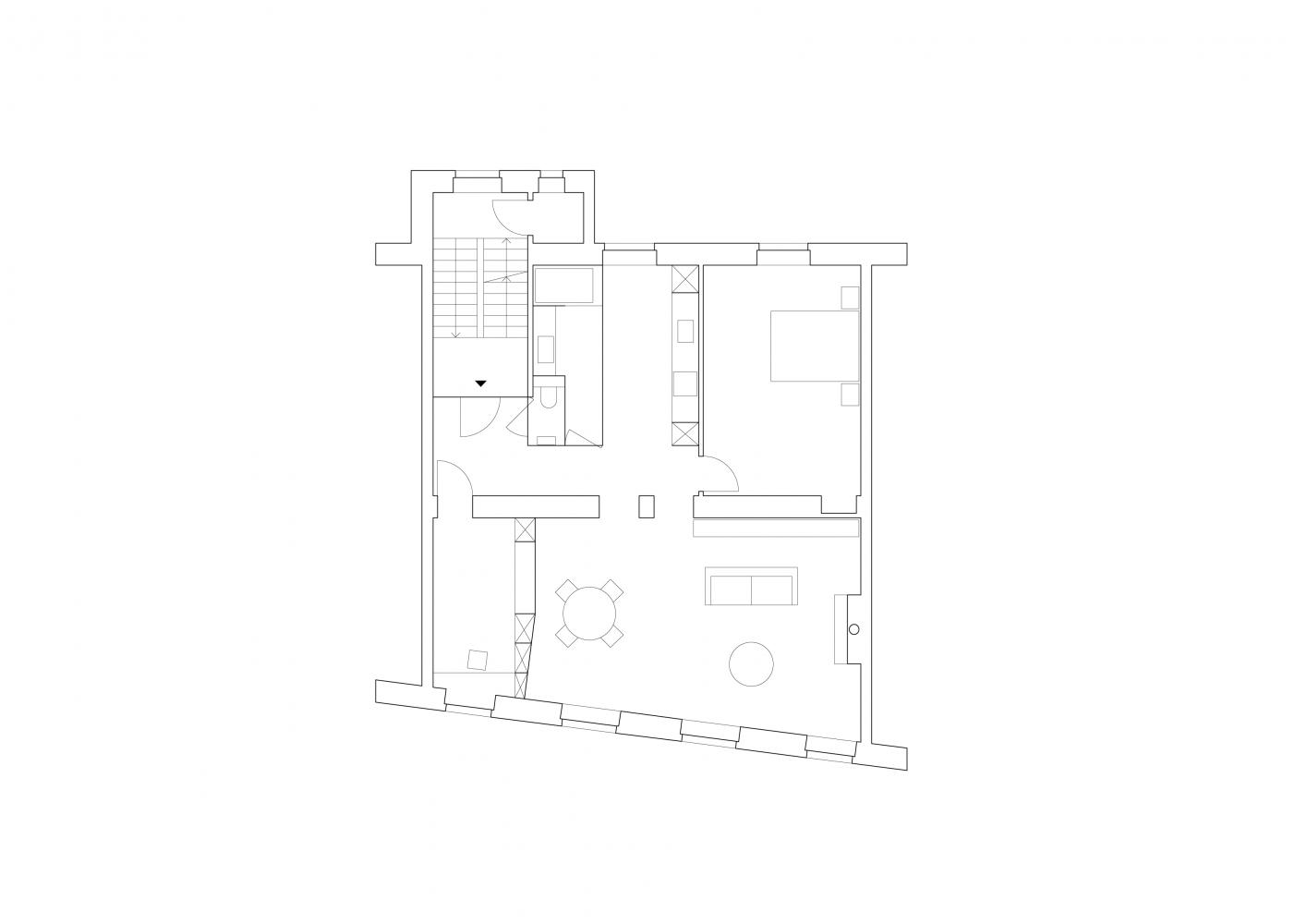
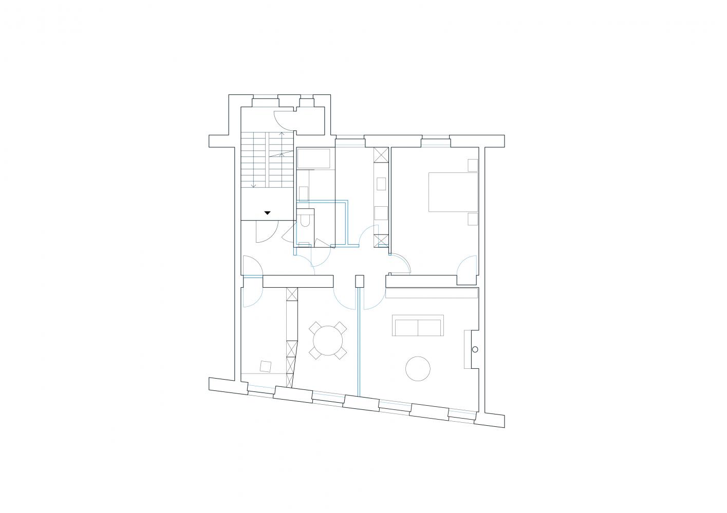
2 precise inserts redefine a contemporary dwelling comfort: a 1,5m narrow glass box integrates a separate toilet and a bathroom. The box in translucent glass is as much a spatial as a lighting element, separating and framing an open kitchen from the entrance. 

 

In the living room, a folded mirrored wall reflects and thus visually doubles the irregular space. 

The mirror’s shelving structure defines a cell space, which is office and guest room.

 

pictures by Maxime Delvaux