HERCULE

private
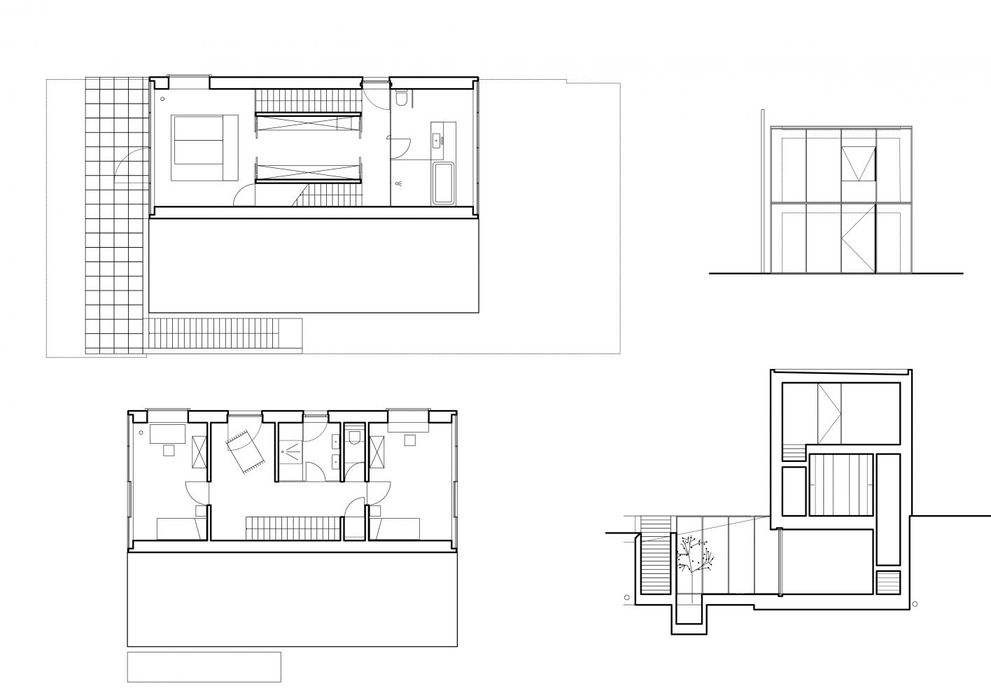
single family house in & on a slope
250 m2
built
2015-2017

Exploiting the slope of the plot, the house’s living area is sunken underground, on street level, providing maximum privacy and enabling a minimal visual footprint overground.

The building‘s proportions are dimensioned to a vital minimum, resulting in a radical design of the openings and the spaces’ relation to the outside: the living area is completely glazed to the south and open to a patio, making it possible to double in size. The parents’ area is planned in an apartment layout on the garden level, fully opening the bathroom and bedroom to the east and west exterior. The visitors’/childrens’  bedrooms located on a +1 (+2) floor  have the same quality, while their bathroom benefits of zenithal light.