OMNI.

Ville d'Esch-Alzette
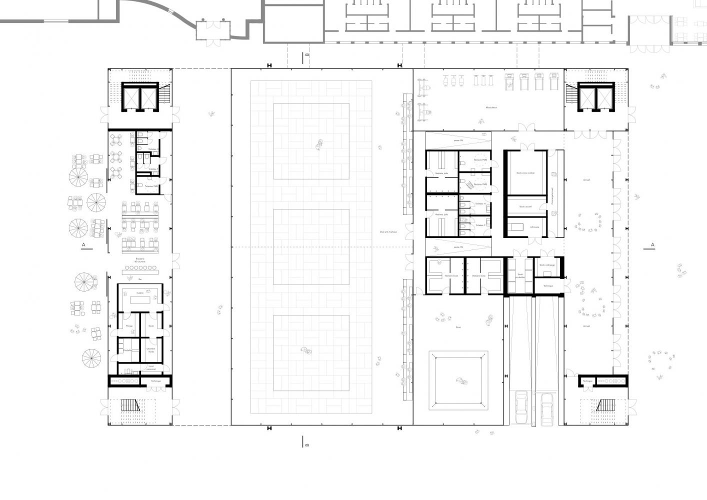
2 omnisport halls, martial art centre, parking, offices, restaurant
1500sqm
competition

Invited competition for 2 sports halls, martial arts centre, a restaurant, parking decks and office spaces, Esch-ALzette, Luxembourg. 2020

OMNI. set out to define a contemporary context and public building typology, at the height of current global challenges and the locally emerging transborder metropolis.

 

By condensing the program, OMNI. minimizes the footprint and promotes functional & technical synergies. A non use-specific, resilient steel structure physically frees the groundfloor, which is liberated from cars, located on the first and second floor. These parking decks can ultimately be turned into another function.

Productively condensing the various functions led to the activation of leftover areas that would be turned into a park and thus contribute to neighbourhood life and water management. 

OMNI. civic equipment for a rising transborder metropolis.