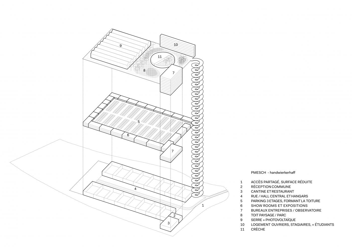
PMEsch Constructo-Collaborative City Campus

Escher Betriiber
Study
conceptual study

The sectoral planning culture in Luxembourg generates a fragmented landscape.

Probably its most outdated expression are the economic and activity zones, reproducing similar if not identical program in generic shacks floating on a sea of totally sealed soil.

 

Its inefficient land use makes that Esch-Alzette, Luxembourg’s second city and first craftsmanship hub, is outof dedicated surfaces.

PMEsch hence proposes to introduce the sharing economy in these zones, mixing warehouses withcomplementary program in order to become a truly urban infrastructure, a constructo-collaborative city campus.